WiFi Planning - Too many APs?

I am planning the networking for an upcoming renovation project, and in particular Wifi AP placement.

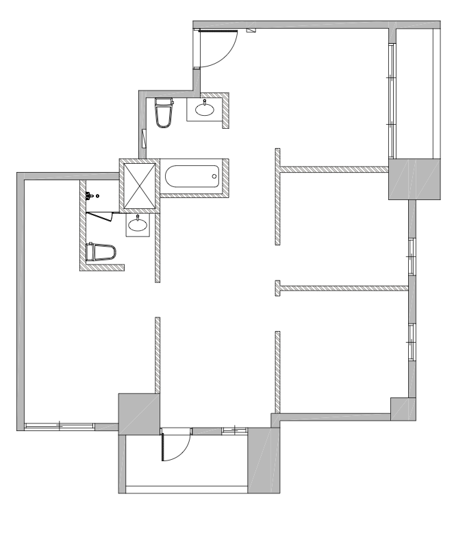
Physical Situation: A single level apartment of around 100 m2 in area, walls are drywall.
Wishes: I would like full 6Ghz coverage in all living spaces (indoors except bathrooms) and 5Ghz everywhere else.

This is the blank floor plan. The main door (top left) is 1.05m wide and can be used as a size reference.

This is what I currently have on the Unifi planner and this heat map is showing 6Ghz coverage. I feel like I have too many APs?

Challenges and concerns:

  1. Due to the amount of APs needed to get good 6Ghz coverage, it seems likely to cause interference on the 5Ghz and 2.4Ghz bands. How do I tune the wireless settings to minimize interference? (And also avoid causing WiFi problems for neighbors)

  2. How bad would it be for me to use DFS 5Ghz channels? Unifi software warns against it but does it really matter?

  3. Locally only 5945Mhz - 6425Mhz range of the 6Ghz band is approved for WiFi. Due to the availability of 6Ghz bands , I cannot have 2 6Ghz 320Mhz wide channels in the same space without them overlapping. Is having them set to 320Mhz and taking the hit with the overlapping channels better or changing the APs to 160 or 240Mhz to avoid interference the better way to go?

Why Unifi and not some other vendor:

  1. Local availability
  2. They look better. I won’t be able to ceiling mount APs from other vendors.

Check out the u7 Pro XG for an access point as it pretty much negated the u7 Pro.

Try one central AP first and do a scan with the wifiman app around your apartment. I’m betting one single AP centrally located will be just fine for that size space. Multiple APs that close together will be a nightmare to tune properly so that the handoffs actually work the way you want.

The DFS channels didn’t work well for me in my home setup so I now have them turned off and am having no issues using the “normal” 5ghz channels. We never rolled them out to the production networks either.

You shouldn’t need more than one AP so don’t worry about the overlapping channels until you know you’ll need to add another AP. At that point channel width can be adjusted.

Don’t worry about your neighbors, you will most likely be an issue but they probably won’t notice

The U7 Pro XG is not available in my region.

I currently have one AC Lite centrally located and I am having problems with weak 5Ghz signals to the top right area, causing some clients with weaker WiFi hardware to constantly jump between 2.4 and 5Ghz

I don’t think it will be sufficient for 6Ghz.

AC Lite doesn’t have much in common with the modern unifi APs. The antenna patterns have been redone several times since that AP was current and the gains and sensitivity are much better on the newer u6 and u7 series. One u7 should be fine for that size space.

Make an SSID only for 6GHz and another SSID for 2.4 and 5, then disable all APs except for the center one from broadcasting the SSID with the 2.4 and 5GHz bands on it.

So if you only have two channels without overlapping when using 320MHz then you should cut your number of APs down to four and use 160MHz channels. Your house is too small to do overlapping channels. Looks like APs are not even 10m away from each other.

For my 900m2 house with three stories 2 u6 enterprise APs serve the entire house just fine. 1940s build with a mixture of wall materials and a not very open floor plan. The unifi planner wants a much higher gain than many devices need or want as well. You can always add more once you have the central AP installed and have seen the real world performance in your space.

unless that house/appartment/condo/flat/thing_resembling_a_home is 2000 sqft plus and/or there are rooms with more than 1 wall or celling between an ap and the device in the room more than 2 is at the point of overkill. Also are thes all hard wired or meshed?

I cover 6000sqare feet of floor space(3000sqft per story of fairly open floor plan only bathroom and bed rooms have a walls between them) across 2 floors for half gigabit wifi speeds minimum with only 2 unifi 6 pros, their placement allows for the important rooms to be gigabit plus on wifi which is better then the wired link back to the router.

the way i would describe wifi is if you have clear line of sight between you and an ap, and your less than 75ft(most houses are less than this in any given dimension) from it you willl probably get full speed of the lowest common denominator of the wifi tech in the ap and device. Your mostly combating walls and obstructions on your signal strenght.

Also there is the acesspoint roaming problem, devices just don’t roam correctly so even if you put a ap in every room there is no way unless you mannualy dissconnet and reconnect every time you switch rooms are you going to get your devices to roam as you would expect. and roaming has the byproduct of it causes many services to drop if your device does roam while using them. I think a 100% perfect covverage that while is achivable you will find means squat when your devices refuse to roam from the ap across the house to the ap your sitting right under on the celling.

I think a single acesspoint with 100% coverage even if its not perfect with 100% signal strength everywhere will be a better wifi experience 99 times out of 1000 than 2 acess points to get the perfect coverage. Lets not even go into 3+ in a home.

Do you live near an airport or have a lot of overhead air trafffic, if so it will be a problem.

I would only place one or two APs for full coverage - especially because it’s drywall. I would say differently if it was concrete, but honestly, for drywall, you should be fine. I would just slap the one right smack in the middle and call it a day :slight_smile:

But if you wanna be safe, one on the top right and the one at the bottom left, would give you guaranteed coverage

Seems like a good amount of AP’s for 6ghz. But you will want to turn the 2.4 and 5ghz channel down to low/med. I would jump to Pro XG or Pro XGS for the 10Gbe. You don’t have to have a 10Gb switch to use those. But you would have the option later on.

You definitely don’t need four APs for that size apartment since about two well-placed units should easily provide full 6 GHz coverage through drywall, with one positioned in the central living space and the other covering the right-side rooms. Too many APs only add co-channel interference, so it’s better to reduce the count and tune settings carefully. Band steering should be enabled so that capable devices prefer 6 GHz first, then 5 GHz, and finally 2.4 GHz. For transmit power, run 6 GHz on high, 5 GHz on medium or low, and 2.4 GHz on low, which keeps overlap to a minimum. On channels, 6 GHz is best set to 160 MHz since the locally available 5945 to 6425 MHz band cannot fit two non-overlapping 320 MHz channels, and overlapping them only causes more problems, while 160 MHz gives you clean usable channels. For 5 GHz, stick to 80 MHz maximum and enable DFS channels, which in practice are less congested and only rarely force a channel change if radar is detected (if you live in a city or near a weather radar or near an airport), something unlikely in a typical residential environment. Keep 2.4 GHz at 20 MHz only. This combination provides wide, consistent coverage and limits interference both inside your network and with neighbors. If your goal is consistent performance everywhere, use only 160 MHz on 6 GHz, but if you want absolute peak Wi-Fi 7 speeds in one space you could set a single AP at 320 MHz and testing if you need another?

1 Like

I live in the city and is about 5km from the nearest airport, which is a combined civilian and military airport with many flights daily.

Yeah so you will want DFS. You will get more channel availability at the cost of the occasional minor hiccup to accommodate the local radars

Thanks for all the feedback, I think I will run in the cables as shown in my plans but only install the bottom center AP and the top right AP initially. If there are problems with signal strength I will then move APs around and/or add new APs to boost coverage in problem areas.